
地址:河南省周口市川匯區銀珠大道周口一高南100米
手機:13033969998
熱線:0394-8595585
信箱:455329348@qq.com
網址:www.dongyedatuo.cn
散裝水泥罐作為攪拌站的配套散裝物料儲存裝置,是每一個水泥攪拌站必備的儲料以及轉料裝置。散裝水泥罐相比片裝水泥罐安裝簡單,比較受到大眾的歡迎。散裝水泥罐規格眾多,購買者需考慮自己的實際情況進行選購。
水泥罐規格有:50T、80T、100T、200T、300T...到1000T都有常用散裝水泥罐的有80T、100T和200T的。而日常所用的水泥在松散狀態下的容重一般在0.90~1.30千克/升范圍內。用戶可以根據需要選擇合適的水泥罐。下面使一些中小型的水泥罐規格:

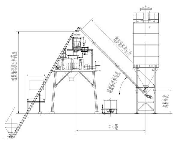
選擇散裝水泥罐時,要考慮水泥罐的下料高度,確定好下料高度后注意選擇合適的螺旋送料機。
散裝水泥罐卸料高度計算。散裝水泥罐的卸料高度指水泥罐的下料口距基礎零平面的垂直距離。卸料高度計算需根據攪拌機位置、高度、水泥罐與攪拌機中心距及螺旋輸送機長度、角度來確定。一般的,螺旋輸送機常規出廠長度為6M、9M、12M三種,角度一般在30~60度為佳。通過簡單的數學計算方可得出散裝水泥罐卸料高度。具體如下圖:

周口錦榮倉儲設備有限公司,提供各種型號的散裝水泥罐定做,日常備有80T、100T、150T、200T規格的水泥罐,歡迎前來選購。推薦閱讀:《散裝水泥罐 螺旋輸送機的選購及安裝》。