
地址:河南省周口市川匯區銀珠大道周口一高南100米
手機:13033969998
熱線:0394-8595585
信箱:455329348@qq.com
網址:www.dongyedatuo.cn
水泥罐作為混凝土攪拌站的散裝水泥存儲設備,應用越來越多。其中100噸水泥罐、200噸水泥罐等是最常用到的,水泥罐生產廠家在生產水泥罐產品時,都是需要有圖紙的,大家在購買水泥罐時,如果不知道自己的攪拌站需要用多大規格的水泥罐時,都可以根據水泥罐圖紙和尺寸來進行選擇。
水泥罐生產廠家提供100噸水泥罐和200噸水泥罐生產圖紙供大家參考,如果在其它地方用到請標注周口市錦榮倉儲設備有限公司提供!
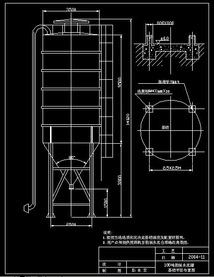
100噸水泥罐圖紙

100噸水泥罐罐體高度13米左右,罐體直徑3米,100噸水泥罐主要由灌體鋼結構部分、爬梯、護欄、上料管、除塵器、壓力安全閥、高低料位計、卸料閥等部分組成。
200噸水泥罐圖紙

200噸水泥罐可以儲存多少水泥?
水泥密度大概1.3-1.8噸每立方,200噸*1.8(取最大值)=360立方米
水泥罐生產廠家提供100噸、200噸、500噸等多種規格水泥罐產品,我公司水泥罐的制作完全符合行業標準,支持現場定制,提供技術支持和完善的售后服務。
如何正確安裝使用水泥罐?
1、安裝過程中,嚴禁罐體傾斜、支腿變形等。
2、基礎必須牢固,符合建筑設計規范。
3、當水泥倉(水泥罐)工作時,必須由專用吊機將其立起,然后放到預先預制好的混凝土基礎之上,并檢查水泥倉(水泥罐)立起以后與水平面的垂直度,然后將其底部與基礎預埋件焊接牢固。
4、水泥罐做好防風、防雷工作。
5、嚴禁強力撞擊支腿及罐體。
6、定期檢查除塵器布袋的水泥附著情況,及時清理。
200噸散裝水泥罐如何定制價格是多少http://www.dongyedatuo.cn/New-147.html